Przyczepa kempingowa IKEA? Gdzie ją kupić i ile kosztuje?
Ciekawostki | | 19.03.2021
Gigant handlu detalicznego w segmencie wykończenia wnętrz IKEA we współpracy z amerykańską firmą ESCAPE producentem małych kamperów, oraz firmą medialną VOX Creative stworzyła pierwszy projekt małego mobilnego domku na kółkach.
Przyczepa kempingowa od IKEA ma zmienić postrzeganie tradycyjnego podejścia do produkcji przyczep, które mają przypominać raczej mały domek, w którym chciałbyś zamieszkać na dłużej niż tylko na wakacje– ale dodatkowo jest- ponieważ można ją zamawiać- w 100% mobilną konstrukcją.
Mistrzowie aranżacji wnętrza i wykorzystania przestrzeni.
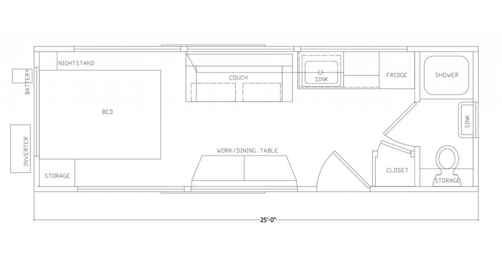
Przyczepa kempingowa, którą widzicie to generalnie model firmy ESCAPE Vista Boho XL który możecie zobaczyć w pierwotnej wersji TUTAJ
Szwedzi wkroczyli do akcji i postanowili stworzyć masowy produkt, z wnętrzem w stylu IKEA.
Projektanci wykorzystali małą przestrzeń do przechowywania przedmiotów do maksimum. Przestrzeń w przyczepie wydaje się być większa niż w rzeczywistości. Powierzchnia przyczepy to 17,5m2 W przyczepie zmieszczono łóżko typu queen-size w sypialni, jak i kanapę w salonie. Oba rozwiązania mają wbudowane schowki pod spodem. Stół w salonie może być również biurkiem do pracy mobilnej, ale również masz możliwość aby go całkowicie złożyć i powiększyć przestrzeń.
Materiały użyte do produkcji przyczepy pochodzą z recyklingu (m.in. z przetworzonych plastikowych butelek),a wnętrze jest wykończone boazerią sosnową które były uprawiane w sposób zrónoważony. Przyczepa jest oczywiście wyposażona w panele fotowoltaiczne, i w najbliższym czasie pojawi się system odzyskiwania wody deszczowej.
Gdzie można kupić przyczepę kempingową IKEA i ile kosztuje?
Pierwotny model tej przyczepy firmy ESCAPE kosztował 47.550$ natomiast model na który IKEA przyjmuje właśnie zamówienia kosztuje 47.500$ z całym potrzebnym wyposażeniem. Gdybyś chciał się dzisiaj udać do najbliższego salonu IKEA, aby złożyć zamówienie to niestety musimy cię rozczarować – na razie przyczepa będzie dostępna tylko w USA. Ikea jednak nie wyklucza że w świetle wzmożonego zainteresowania karawaningiem w Europie w najbliższym czasie nie wprowadzi podobnego rozwiązania w wybranych krajach i być może we współpracy z europejską firmą dostarczającą rozwiązania dla karawaningu.
Czy bylibyście chętni na taki produkt z IKEA ?













